Увеличение дачного дома за счет пристройки. Как расширить площадь загородного дома. Реальные примеры готовых проектов
- Увеличение дачного дома за счет пристройки. Как расширить площадь загородного дома. Реальные примеры готовых проектов
- Как построить дом из бутылок своими руками. Как построить дом из пластиковых бутылок?
- Сколько стоит расширить дом. Стоимость реконструкции дачных домов
- Дом из бутылок. Ход работ
- Строительство из стеклянных бутылок. Стены из бутылок
Увеличение дачного дома за счет пристройки. Как расширить площадь загородного дома. Реальные примеры готовых проектов
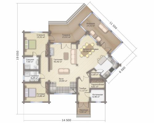
Дом можно расширить за счет пристроек, переоборудовать чердак в мансарду, добавить дополнительные помещения, веранды, террасы. Рассмотрим несколько кейсов — как архитекторы GOOD WOOD работают с пространством, чтобы получить максимальную жилую площадь.
Пристройки
Веранда . Пристройка может быть как открытой, так и закрытой. При желании можно сделать утепленную веранду под одной крышей с домом. Это отличное место для семейных обедов, а кто-то обожает летом спать в таком помещении на свежем воздухе, где так приятно выспаться в тишине.
В просторном индивидуальном доме в Есенино ( 434 кв.м.) веранда площадью 32 кв.м имеет прямой выход из кухни. Здесь разместилась полноценная летняя кухня и хватит места, чтобы установить большой обеденный стол.

Вдоме в Дмитровогорскомполностью застекленная веранда стоит под углом к дому из-за чего дом кажется больше. И это не только визуальный эффект — качественное остекление позволяет использовать веранду даже в прохладные дни как дополнительную комнату.




В примере индивидуального проектадома в Бешенцевепристройка выполнена в виде застекленной с трех сторон веранды с выходом в сад. Помещение стало продолжением столовой зоны с кухней, помимо отдельной обеденной зоны здесь нашлось место даже для камина. При желании системы остекления можно сделать портальными или складными, что позволит получать открытое пространство на свежем воздухе круглый год.




Терраса
Главное отличие трассы от веранды — отсутствие крыши, здесь только пол и ограждение, но от солнца и осадков может быть предусмотрен навес.
Часть террасыдома в Рассказовкезакрыта перголой. Здесь будет приятно ужинать и обедать на свежем воздухе.

Как построить дом из бутылок своими руками. Как построить дом из пластиковых бутылок?
Еще пару десятилетий назад среди умельцев было модно возводить дома из стеклянных бутылок. Кто-то отделывал с их помощью лишь чердак, кто-то – полностью все стены. Сегодня пищевой пластик настолько обогнал по популярности стекло, что городские свалки нередко представляют собой горы этого материала. Возникла серьезная опасность того, что все человечество просто погрязнет в пластике. Поэтому у немецкого инженера Андреаса Фроеса возникла идея – построить дом из пластиковых бутылок. Ведь на строительство одноэтажного здания уходит от 10 тысяч емкостей. Кроме того, все чаще можно встретить и другие постройки: беседки, теплицы, заборы, садовые дорожки из пластика. Это вылилось в полномасштабную разработку новой технологии, которая получила названия Eco-Tec. Подобное решение позволило обеспечить дешевым и прочным жильем многих бедных жителей Южной Америки и Африки (в Гондурасе, Боливии и Колумбии завершили строительство 50 подобных домов, а в Нигерии построили целый квартал из пластиковых емкостей).

Пластиковые емкости способны заменить собой кирпичи или пеноблоки. В странах, где царит вечное лето, возводят стены, не заполняя бутылки различными сыпучими, и получаются дома, построенные по тому же принципу, что и самый простейший забор или теплица. А вот капитальные здания делают уже более основательными, чтобы они выдерживали все четыре времени года. В этом случае внутрь бутылки засыпается песок, мелкая фракция шлака или просушенная земля. Такое строительство не только обойдется дешевле, но и немного облегчит тяжелое состояние окружающей среды, ведь тут подходят пластиковые бутылки всех форм, размеров и цветов.
Какие основные преимущества имеет дом из пластиковых бутылок?
1. Более низкая стоимость. Бессмысленно покупать новую тару у производителей пластиковых бутылок или газированных напитков. Лучше начинайте одновременно ее собирать и разрабатывать план дома. Привлеките к этому занятию всех друзей, – особенно большие «урожаи» наблюдаются в летний период. Также можно договориться с кафе о бесплатном вывозе тары.
2. Прочность и долгий срок службы. В процессе постройки дома главный недостаток пластика превращается в важнейшее преимущество: пластиковая бутылка способна пролежать столетия в земле и остаться в идеальном состоянии.

Порядок выполнения работ:
1. Собираем пластиковую тару.
2. Засыпаем песок, землю или шлак в бутылки. Этот этап простой, но один из самых утомительных и продолжительных. Можете поручить его детям или же заниматься этим долгие зимние вечера, дожидаясь весны и возможности приступить к строительству. Очень плотно закрутите крышки.
3. Подобную постройку всегда начинают с возведения колонн. В доме из пластиковых бутылок их должно быть не менее 3-4 штук. Нужно вырыть яму в виде круга диаметром 0,6-1 м, чтобы получился фундамент диаметром 0,4-0,8 м для колонны. В центре ставится арматура, а вокруг нее на некотором отдалении делается круг из бутылок горлышками вовнутрь (примерно 10-11 шт), при этом горловины нужно сразу обмотать капроновым шпагатом. Класть емкости нужно сразу на ровный слой бетона. При правильной укладке соседние крышки должны соприкасаться. Заполняем все просветы между емкостями цементом, оставляем на несколько часов, затем выкладываем следующий ряд в шахматном порядке относительно первого. И так далее на всю высоту колонны. Внутри колонну можно заполнить битым кирпичом или прочим строительным мусором. После окончательной усадки, штукатурим колонну.



4. Аналогично выкапываем траншеи под фундамент дома, возводим стены, перематывая горлышки всех бутылок. Крепим оконные блоки.

5. Далее проводятся сопутствующие работы: установка газовых, водопроводных труб, монтаж крыши, черновая и чистовая отделка стен. После этого уже будет практически незаметно, что дом из пластиковых бутылок. Удачного и недорогого строительства!
Сколько стоит расширить дом. Стоимость реконструкции дачных домов
Многие старые постройки использовались в качестве временных жилищ, поэтому возводились непродуманно, часто без коммуникаций. Когда владельцы решают превратить такой дом в место, где можно жить круглый год, без помощи профильных специалистов не обойтись. Даже если хозяин — человек работящий и умелый, вряд ли он обладает специальными навыками и знаниями. А без них провести реконструкцию с соблюдением всех технологических норм не удастся.
Стоимость отдельных работ при реконструкции (Московский регион):
- Выезд на объект с консультацией — 4-5 тыс. руб.
- Реконструкция фундамента (работа, материал) 8-9 тыс. руб. за м/п.
- Ремонт крыши (работа, материал) 6400-7500 руб./м².
- Сборка каркаса. Наружные стены — 320-350 руб./м², внутренние стены и перегородки — 300-335 руб./м².
- Утепление каркаса и перекрытия, звукоизоляция внутренних стен (толщина 50 мм). 45-55 руб./м².
- Обшивка наружной стены (листы ОСП). 180-220 руб./м².
- Монтаж инженерных коммуникаций (работа) — 3,5-4 тыс. руб./м.
- Монтаж электросети (работа, материал) 2,4-3 тыс. руб./м.
- Косметический ремонт. 2900-3200 руб./м².
- Капитальный ремонт. 5700-6500 руб./м².
- Евроремонт. 8990-10700 руб./м².
- Черновая отделка (без учета материалов). 3000-3400 руб./м².
Некоторые исполнители предлагают свои услуги комплексно. В таком случае цены будут иметь следующий вид:
Ремонт старого деревянного дома: все этапы восстановления – от фундамента до отделки
Варианты реконструкции
Реконструкция частного дома является обыденным и вместе с тем индивидуальным процессом, со своими тонкостями и сложностями. В планах хозяев много желаний, от переноса перегородок, до постройки террасы. Но, как правило, все работы привязаны к одному из вариантов.
Дом из бутылок. Ход работ
Для возведения стен среднего по размеру дома уйдет не менее 20 тысяч бутылок. В принципе, не обязательно накапливать одинаковые — используя тару из-под шампанского, вин и пива, вы сможете создать интересные узоры и на выходе получить в помещениях уникальную витражную игру света.
Дом из бутылок требует тщательных расчетов: в основном из-за большого веса, и этот параметр нужно обязательно учитывать при выборе типа фундамента и видам обвязки. Это дело лучше доверить профессионалам.

Сама кладка практически ничем не отличается от кирпичной, здесь меняется сам «стройматериал». Учитывая его свойства (стекло никак не будет схватываться с раствором, а будет просто им покрыт), необходимо:
- каждые 2-3 ряда прокладывать по стене армирующую сетку;
- оставлять между горизонтально выложенными бутылками зазоры, которые будут заполняться раствором.
Отдельно следует рассмотреть раствор. В зависимости от назначения будущего здания, вы можете использовать разные составы:
- цемент с песком 1:3;
- шлак, цемент песок в соотношении 2:1:1 для создания утепленных стен.
Экономить раствор не надо, особенно при кладке первого этажа. Слой должен быть не менее 40 мм внизу и около 30 мм в верхней части стен. На высоте толщину нужно убавлять, чтобы не перегружать фундамент и стены лишними нагрузками. При строительстве нужно тщательно выравнивать швы, если вы хотите, чтобы стены остались с «бутылочным» витражом.

Строительство из стеклянных бутылок. Стены из бутылок

Стены из бутылок своими руками
Когда в доме накапливается множество стеклянных бутылок, то возможно не стоит их выбрасывать. Бутылки можно использовать в качестве строительного материала для возведения сарая или гаража. Отличительная особенность стеклянных стен в их низкой теплопроводности.Для постройки сооружения необходимо подобрать бутылки одинакового диаметра и размера. Сцепление бутылок производится из раствора – песок и цемент 1:5. В данном случае глина не используется.
Для начала, бутылки погружаются в грунт в два ряда, донышком вниз. Глубина погружения бутылок должна составлять 35 см. Затем заливается цемент. Для сушки слоя потребуется не меньше 8 часов. Слой можно назвать фундаментом.
Затем делается второй слой, стены – бутылки на фундамент укладываются «валетом». С одной стороны горлышко бутылки должно смотреть внутрь дома, а горлышко второй наружу. Этот слой также заливается цементом и полностью высушивается.
Расход цементного раствора при таком строительстве минимальный, так как он используется исключительно как связующее вещество.
Крышу сооружения можно сделать из любого, не тяжёлого материала,, ондулина или шифера. Вверху стены, в цемент закладываются деревянные брусья, на которые и будет укладываться крыша.
Листы кровельного материала рекомендуется укладывать внахлёст, и соединяются строительными гвоздями. Не забудьте на каждый гвоздь надеть резиновую шайбу, или из пластика. Можно использовать даже крышки из-под лимонада. В этом случае влага не будет попадать внутрь помещения.
Там где крыша касается со стенами, рекомендуется тоже сделать заливку цементом, чтобы утеплить сооружение. Мелкие щели можно задуть монтажной пенкой. Строение с такими характеристиками будет прекрасно сохранять тепло в зимний период, а летом внутри будет прохладно.
Стены из стеклянных бутылок – плюсы и минусы
Преимущество стеклянных стен и в том, что такие здания абсолютно пожаробезопасные.
К минусам такого строения можно отнести только то, что при желании демонтировать строение, придётся разбить очень много стекла. Сложность состоит и в том, что в таком доме достаточно сложно установить окна. Хотя при желании, на цемент можно уложить деревянные проёмы, в которые потом установить рамы и стекла. Таким же образом можно установить и двери.
Подручные материалы позволяют создать необычные строения, которые подойдут в качестве подсобных сооружений. При этом, имея хотя бы чуть-чуть фантазии, можно создать интересные витражи, используя разноцветное стекло.
Также, про, читайте перейдя в другую статью строительного журнала, по выделенной ссылке.
Источник: https://dekor-i-interer.ru-land.com/stati/stena-iz-steklyannyh-butylok-steny-iz-butylok