Ремонт фундамента дачного дома своими руками. Как избежать нарушения целостности основания
- Ремонт фундамента дачного дома своими руками. Как избежать нарушения целостности основания
- Усиление кирпичного фундамента. Усиление торкрет-бетоном
- Как залить новый фундамент к старому. Соединение фундаментов с использованием деформационного шва
- Фундамент по старинке. Средневековые фундаменты.
- Старый фундамент на участке. Усиление ленточного фундамента
- Как подлить фундамент под старый дом. Как подлить фундамент к старому деревянному дому
- Как подлить фундамент под старый кирпичный дом. Как подлить фундамент к старому фундаменту — технология проведения работ
- Технология фундамент для пристройка к старому дому. Особенности возведения основы под пристройку к дому: разновидности фундамента
Ремонт фундамента дачного дома своими руками. Как избежать нарушения целостности основания
Для начала необходимо четко придерживаться технологии строительства при заливке основания. Тип фундамента требуется соотносить со структурой почвы на территории, а также правильно организовать гидро- и теплоизоляцию, особенно первое.
В воде находится большое количество различных примесей, которые контактируют с материалами основания, создавая всевозможные химические реакции. Кроме того, их наличие приводит к гниению древесины. Поэтому нужно качественно защитить фундамент.
Гидроизоляция состоит из нескольких элементов: система дренажа, отмостка необходимого размера, изоляция водоотталкивающими стройматериалами.
Немаловажная роль в защите дома от влаги отведена системе отлива воды. Большинство застройщиков игнорируют этот момент, чтобы сэкономить, но этого делать не рекомендуется.

Обустройство дождевой канализации
Нередко причиной является попытка экономии на стройматериалах. В этом случае не рассматривается обычное несоблюдение рецепта замешивания бетонного раствора. Речь идет о заглублении основания. По правилам строительства подошва фундамента обязана располагаться ниже уровня замерзания земли. В различных районах этот показатель свой. Как показала практика, нормально углубленные фундаменты практически не трескаются, поскольку в зимнее время на них пучение земли почти не влияет.
Если возведение дома производится на торфяных почвах, перед заливкой основания требуются мелиоративные работы по обсушиванию грунта.
Внешняя теплоизоляция основания нужна, если под зданием находится подвальное помещение. Утепление не даст возможности сооружению промерзнуть в зимнее время, даже в процессе проникновения вовнутрь влаги.
Ремонт фундамента деревянного дома своими руками обходится дешевле, но качество проведенных работ может быть далеким от идеала. Реставрация, сделанная специалистами, выйдет гораздо дороже, но намного эффективнее.
Ремонт фундамента дачного дома своими руками: как избежать нарушения целостности основания
Для начала необходимо четко придерживаться технологии строительства при заливке основания. Тип фундамента должен быть соотнесен со структурой почвы на территории, а также правильно организовать гидро- и теплоизоляцию, особенно первое.
В воде находится большое количество различных примесей, которые контактируют с материалами основания, создавая всевозможные химические реакции. Кроме того, их наличие приводит к гниению древесины. Поэтому нужно качественно защитить фундамент.
Гидроизоляция
Гидроизоляция состоит из нескольких элементов: система дренажа, отмостка необходимого размера, изоляция водоотталкивающими стройматериалами.
Немаловажная роль в защите дома от влаги отведена системе отлива воды. Большинство застройщиков игнорируют этот момент, чтобы сэкономить, но этого делать не рекомендуется.
Обустройство дождевой канализации
Нередко причиной является попытка экономии на стройматериалах. В этом случае не рассматривается обычное несоблюдение рецепта замешивания бетонного раствора. Речь идет о заглублении основания. По правилам строительства подошва фундамента обязана располагаться ниже уровня замерзания земли. В различных районах этот показатель свой. Как показала практика, нормально углубленные фундаменты практически не трескаются, поскольку в зимнее время на них пучение земли почти не влияет.
Если возведение дома производится на торфяных почвах, перед заливкой основания требуются мелиоративные работы по обсушиванию грунта.
Усиление кирпичного фундамента. Усиление торкрет-бетоном
Ремонт требует обязательного наличия следующих инструментов и материалов:
- лопаты;
- перфоратор;
- песок;
- гравий;
- цемент;
- торкрет-пушка.
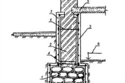
Идеальным вариантом для усиления фундамента кирпичного дома бутового типа будет усиление торкрет-бетоном. Ремонт делается в 2 этапа. На первом этапе следует наметить участки захвата и по меткам провести укрепление основания с одной стороны. Участок захвата должен быть не длиннее 250 см. На втором этапе не менее чем через 7 дней проводят укрепление с другой стороны.
При соблюдении временного режима между этапами ремонтных работ укрепление фундамента будет намного качественнее.

Усиление фундамента торкрет-бетоном: 1 – усиливаемый фундамент; 2 – усиливаемая кирпичная стена; 3 – железобетонная обойма; 4 – анкеры; 5 – надподвальное перекрытие; 6 – отметка пола подвала; 7 – зона обжатого грунта основания.
Усиление фундамента начинается с рытья траншеи своими руками вокруг кирпичного здания. Траншею можно рыть шириной до 2 м. После этого основание тщательно зачищается. Для этого используют металлическую щетку или перфоратор.
При помощи того же перфоратора на поверхность наносят насечки. Они должны быть не очень глубокие (до 1,5 см). Далее замешивают бетонную смесь. Для этого берут песок, цемент, щебень и воду (3:2:1:2 соответственно). Все части тщательно смешивают. Затем раствор под большим давлением с помощью торкрет-пушки наносят на подготовленную поверхность фундамента. Торкрет-пушку можно купить на строительном рынке или взять в аренду.
Подобный метод значительно увеличивает прочность и намного повышает уровень водонепроницаемости.
Благодаря методу усиления фундамента торкрет-бетоном прочность фундамента возрастает в несколько раз. Таким образом, выбрав этот способ усиления фундамента кирпичного дома, застройщик сделает идеальный ремонт основания.
Как залить новый фундамент к старому. Соединение фундаментов с использованием деформационного шва
Как пристроить новый фундамент к уже существующему, если строительство здания только что закончилось, а хозяева поняли, что потребуется ещё одна комната. В этом случае потребуется сооружать новое основание с деформационным швом. Строения также будут соединены друг с другом, но если усадка будет идти неравномерно, она не повлияет на основание ни основного дома, ни пристройки к нему.
Практика строительства очень похожа, но есть одно очень важное отличие. Нельзя использовать соединение при помощи арматуры, единственный вариант, как пристроить фундамент к существующему основанию – подготовить деформационный шов.

Он представляет собой обычную доску, толщина которой составляет 2-5 см. Её оборачивают рубероидом, полиэтиленом или другим материалом, устойчивым к воздействию влаги, после чего она размещается в пространстве между старым и новым основанием.
Новый фундамент заливается бетоном на арматурный каркас, строительство практически не отличается от первого варианта. Однако после застывания бетона деформационный шов убирается, а пространство заполняют утеплителем и монтажной пеной. Это относительно эластичные материалы, поэтому при колебаниях грунта и вовремя усадки они не позволят появиться трещинам в основаниях здания и пристройки к нему.
Это очень простое в исполнении решение, которое позволит решить множество проблем. Деформационный шов снижает риск повреждения фундамента в результате подвижек грунта, и здание с пристройкой сможет прослужить намного дольше. Такой шов нужен обязательно: если о нём не позаботиться, уже через несколько лет зданию потребуется капитальный ремонт с демонтажем полов.
Строительство фундаментов чаще всего ведётся в осенний период. В самом конце строительного сезона можно залить основание дома, после чего оно в течение полугода будет усаживаться, и после этого можно будет спокойно перейти к дальнейшему строительству.
Фундамент по старинке. Средневековые фундаменты.
В средние века фундаменты по-прежнему устраивали в виде сплошных каменных подушек, укладываемых с перевязкой швов на выровненную поверхность грунта. Когда в готической архитектуре потребовалось устройство стен и колонн с большим шагом, сплошные плиты стали разделять на отдельные фундаменты. Специальных правил их проектирования, по-видимому, не существовало. Если подстилающий грунт был твердым, то фундамент делали такой же ширины, как у поддерживаемой им конструкции. Если грунт был мягким, то фундаменты расширялись и выступали за опиравшиеся на них колонны или стены. Размеры этих фундаментов редко связывали с нагрузкой от колонн; обычно они определялись имевшимся пространством или формой опиравшихся на них колонн или стен. Если происходило разрушение, то соответствующая конструкция увеличивалась до тех пор, пока она могла выдерживать нагрузку. При слабых грунтах устраивали подушки из хвороста толщиной в десятки сантиметров: на них затем опиралась каменная кладка фундаментов.
Строительство все более высоких и тяжелых сооружений в конце XIX в. вызывало во многих случаях затруднения при устройстве фундаментов и пробудило интерес к проблеме их проектирования. Появилось требование: при строительстве ступенчатых каменных фундаментов на каждый фут уширения за пределы колонны или стены необходимо производить добавочное заглубление фундамента на I фут. Поэтому фундаменты становились шире при более тяжелых нагрузках; одновременно они делались более глубокими и тяжелыми. В результате вес фундаментов начал составлять большую часть нагрузки от сооружения. Поэтому для облегчения фундаментов в XIX в. пробовали применять обратные арки для распределения нагрузки. Снижение веса фундаментов достигали применением ростверков из рядов деревянных или стальных балок, причем каждый ряд укладывали под прямым углом к ряду, лежащему ниже. Такие ростверки были впервые применены в 80-х гг. XIX в. в Чикаго (США). Они позволили делать фундаменты, выступающие на 3 м за пределы колонн при глубине заложения всего около 1 м. Распространение железобетона в начале XX в. позволило получать тот же результат при меньших затратах.
Старый фундамент на участке. Усиление ленточного фундамента

Схема усиления фундамента бетонными банкетами.
В качестве основания дома ленточный фундамент применяется чаще других типов. Его можно охарактеризовать как цельную структуру, однако некоторые его части допускают нагрузку в большем объеме, чем определено расчетными нормами. Такая конструкция основания дома подвержена локальным пучинистым явлениям. В результате чего появляется перекос постройки, так как на одной части давление будет несоизмеримо больше, чем на другом.
Как укрепить старую ленту? Все работы будут направлены на выравнивание воздействия подземных сил. Целесообразнее всего это осуществить посредством создания дополнительной площади фундамента дома. Работы начинают вести с той его части, где зафиксирован крен.
Сначала выбирают участок стены длиной около 2 м. Далее выполняют усиление основания под будущий дом по определенной схеме. Возле дома отрывают траншею.
Размеры ямы в глубину должны быть такими, чтобы нижняя граница поврежденной части оказалась выше дна ямы на 1 м.
Ширину нового основания рассчитывают исходя из полученных данных.
Часто она совпадает с шириной старого фундамента, но иногда новое основание закладывают шире старого в 1,5-2 раза.
Признаки износа фундамента.
Затем старый фундамент готовят для стыковки с новым. Для этого пробуривают отверстия под штробы и арматуру, куда будет залит новый бетон. После этого устраивают опалубку под новый фундамент, вяжут каркас из арматуры. В последующем его сцепят с имеющейся арматурой.
Когда каркас и дом связаны, заливают бетонный раствор, который проникает в штробы и цементирует куски арматуры. Потом ожидают полного застывания раствора. Затем новый фундамент закапывают и роют новую траншею. С одной стороны стены допускается работать только с одним участком. Для ускорения работ можно вести работы с другой стороны.
Все процедуры по усилению фундамента дома нужно проводить в быстром темпе. Если здание будет простаивать в открытом виде долго, от этого оно просядет намного быстрее.
Как подлить фундамент под старый дом. Как подлить фундамент к старому деревянному дому
Нередко перед хозяином старого деревянного дома встает вопрос наращивания фундамента с целью расширения площади или реставрации здания. Работа требует времени и усилий, но позволяет сэкономить средства на обустройство надежной платформы. Если решено выполнять ремонт самостоятельно, стоит взять на вооружение наиболее эффективные способы, как подлить бетон к уже имеющемуся основанию или подвести под строение готовые заводские плиты.
Как определить состояние фундамента
Прежде чем приступать в работе, следует изучить степень изношенности старого основания дома. Анализ текущего состояния платформы не требует специальной экспертизы, выполнить его можно самостоятельно:
- Впритык к периметру выкапывают траншею на глубину фундамента, с шириной 70-90 см.
- Осматривают оголившийся участок на предмет повреждений.
Поле осмотра участка выбирают оптимальный метод наращивания платформы.

Какое основание можно подводить под дом
Расширение основы выполняют, используя одну из 3 разновидностей фундамента:
- Ленточный. Представляет собой монолит, который заливают по периметру здания. Характеризуется высокими эксплуатационными качествами, служит долго, хорошо держит нагрузку. Рекомендуют для любого грунта.
- Столбчатый. Простая и быстро возводимая конструкция для строений с небольшой массой. Прочности добиваются с помощью металлических балок.
- Свайный. Обустраивается на участках с осложненным рельефом – при наличии подвижного грунта, склонного к пучению или заболачиванию из-за близкого расположения грунтовых вод к поверхности, при резких перепадах высот.
Монолитная плита, преимущественная для болотистых и подвижных участков, почти не используется для наращивания платформы. Конструкция надежная, но требует серьезного вложения средств.

Свайное основание для деревянного дома
Плюсы и минусы расширения
Наращивание старого фундамента позволяет владельцу дома решить несколько задач:
- надстроить этаж, который увеличит нагрузку на основную базу;
- исправить допущенную при планировании ошибку в расчетах;
- корректировать нарушения технологии;
- убрать небольшой дефект фундамента;
- провести плановый ремонт;
- обустроить подвальный или цокольный этаж, котельную.
Недостатки состоят в продолжительности трудоемкого процесса и в рисках, связанных с отсутствием опыта самостоятельной работы. Если наращивание выполнено неправильно, вероятны перекосы, растрескивание стен, декоративной кладки.
Статья в тему: Обвязка свайного фундамента
Какими способами расширить фундамент
К реставрации или к наращиванию основания прибегают, когда состояние старой платформы признано удовлетворительным. Если база находится в плачевном состоянии, ее необходимо заменить, поднимая строение и демонтируя базу полностью. Когда отсутствуют крупные трещины, бетон не подвержен разрушению, достаточно нарастить основу по периметру. Расширение выполняют, применяя один из распространенных методов.
Железобетонные обоймы
Наращивание железобетонными обоймами рекомендуют, когда происходит ослабление старого основания и необходимо повысить прочность отдельных участков. Обойму делают одностороннюю либо двухстороннюю:
- Односторонняя предполагает расширение опоры снаружи, с освобождением фундамента от грунта по периметру.
- Двухсторонняя означает наращивание с обеих сторон – с наружной и внутренней.
Железобетонные обоймы
Наиболее проблемный этап работ – освобождение периметра от почвы.
Для правильного выполнения необходимо придерживаться следующих требований:
- Оголять ленту фундамента небольшими участками, захватками, чтобы не спровоцировать неравномерность усадки площадки под зданием.
- Одновременно оголяют до 1,5-2 м. К следующему участку переходят только после доливки бетона и обратной засыпки обнаженного периметра.
Новые участки необходимо прочно зафиксировать в единую ленту. Общая схема работы:
- Через 1-1,5 м просверливают сквозные поперечные отверстия в шахматном порядке. Такие дыры обустраивают для введения арматуры, которую привязывают к армирующим стержням вновь созданных участков.
- По вертикальным поверхностям прокладывают сетку, изготовленную методом сварки. Используют стальные стержни сечением 12 мм и больше. Размер ячеек 10х10 см. Сетку крепят к вставленным в поперечные отверстия стержням.
- На расстоянии в 1,5 м и более с каждой стороны основы делают опалубку, которую заполняют бетоном. Преимущественной считают смесь с классом сжатия не меньше В10, с подвижностью ПЗ и выше.

Армирование участка под фундамент
Когда требуется расширение под кирпичную кладку, выполняют одностороннюю обойму:
- Сверлят тупиковые отверстия, в которые вставляют стержни арматуры.
- Заливают стержни цементно-песчаной смесью и монтируют сеть.
Готовая железобетонная обойма является замкнутой конструкцией, которая полностью охватывает площадь старой платформы.
Как подлить фундамент под старый кирпичный дом. Как подлить фундамент к старому фундаменту — технология проведения работ
У нормального, но старого здания, фундаментное основание выглядит неприглядно. Дело в том, что в процессе эксплуатации оно подвергалось разрушениям от создаваемых нагрузочных воздействий. Появляется объяснимое желание расширить жилую площадь, провести перепланировку. В каждом из случаев возникает вопрос, как подлить фундамент к старому фундаменту.

Когда используют
Подливка фундамента под стоящий дом требуется в ряде случаев, не всегда связанных с разрушениями имеющейся конструкции. Случается, что на стене здания образуются трещины, что подтверждает просадку основания, и следует срочно выполнить усиление конструкции.
Размеры основания определяют с учетом состояния почвы и веса будущего здания. Для расширения жилой площади, устройства дополнительного этажа, замены кровельного перекрытия, не предусмотренное проектным решением, требуется подливка фундамента.
Плюсы и минусы подливки фундамента
Главное преимущество заливки нового фундамента вокруг старого дома состоит в том, что есть возможность избежать необратимых разрушительных процессов либо полной замены конструкции. Решение второй проблемы станет затратным по финансовым средствам и по свободному времени, но если подлить фундамент под старый дом, то здание простоит еще продолжительный период.
Кроме того, процедура подливки старого фундамента потребует минимальных затрат, да и ремонтные мероприятия вы легко выполните самостоятельно.

К сожалению, имеется один недостаток – подобная реконструкция фундаментной основы подходит исключительно для малоэтажных объектов.
Технология выполнения работ
Попробуем разобраться, как правильно подлить фундамент к старому фундаменту.
Подготовка
Определить необходимость проведения ремонтно-восстановительных мероприятий можно с помощью установленных маяков.
С этой целью на образовавшиеся трещины наклеивают бумажные полоски, и, если они быстро разорвутся, следует незамедлительно начинать восстановительные работы.
Если вы решили выполнить все своими руками, подготовьте механические или гидравлические домкраты, которыми приподнимете здание.

Подъемные механизмы устанавливаются под каждый угловой участок.
Земляные работы
По всему периметру фундаментной конструкции выкапывается траншея. Начинаются земляные работы от углов сооружения, потом продолжаются в точках пересечения наружных стен и межкомнатных перегородок, затем копают по оставшемуся периметру.
Траншею готовят отдельными участками, со всех сторон по очереди. Ширина ее не должна превышать одного метра, глубина – ниже старой фундаментной подошвы. В процессе работы следует выдерживать уклон внешней стенки на тридцать – сорок градусов, чтобы избежать осыпания почвы.
Закончив с земляными работами, фундамент осматривается на наличие дефектов и разрушений, стенки его очищаются и выравниваются.
Армирование
Переходим к очередному этапу восстановления фундамента под существующим домом.
Следует выполнить армирование, используя металлические прутья диаметром восемь – двенадцать миллиметров. На боковых стенах старого основания устраивается горизонтальная обвязка, состоящая из нескольких лент с шагом в шестьдесят – сто двадцать сантиметров.
В конструкции устраиваются отверстия через каждые метр – полтора. Если сверлить приходится в местах сильных разрушений, интервал между отверстиями сокращается до тридцати – сорока сантиметров. В подготовленные точки устанавливаются арматурные отрезки.
В траншею опускаем трубу с таким расчетом, чтобы одним концом она уходила под старую фундаментную основу, а второй оставался над поверхностью земли.
Теперь необходимо развести жидкую бетонную смесь («цементное молочко») и постепенно заливать ее в установленную трубу, напитывая почву под фундаментной подушкой. Процедура продолжается до того момента, пока вода начнет оставаться на поверхности в течение двух – трех часов, не впитываясь в почву. Выждав сутки и увидев, что смесь впиталась полностью, продолжаем заливку. В том случае, когда бетон сохранил свой вчерашний уровень, переходите к очередному рабочему этапу.
Строительство опалубки
Чтобы надежно присоединить новый фундамент к старому, выставляем опалубочную конструкцию. Внутреннюю поверхность деревянных щитов затягиваем полиэтиленовой пленкой, чтобы не допустить протекания бетонной массы в щели.

Делаем песчаную подушку
Дно траншеи засыпается песком, который обильно увлажняется и утрамбовывается. Толщина подушки должна быть от десяти до пятнадцати сантиметров.
Бетонирование
Бетонную смесь можно готовить вручную либо заказать ее доставку на площадку миксером. В процессе бетонирования рекомендуется использовать вибратор, чтобы предотвратить образование пустотных участков в бетонной смеси.
Когда бетон окончательно застынет, опалубочные щиты демонтируются, на новом основании устраивается гидроизоляционный слой, проводится обратная засыпка грунта.
Специалисты рекомендуют после обновления фундамента залить вокруг дома отмостку.
Особенности выполнения работ
Если вы не знаете, как правильно пристроить фундамент к существующему дому, воспользуйтесь приведенной ниже информацией.

Технология фундамент для пристройка к старому дому. Особенности возведения основы под пристройку к дому: разновидности фундамента
Любой пристройке, для чего бы она не предназначалась, потребуется фундамент. От того, какой будет выбран фундамент для пристройки к дому, зависит надежность и долговечность всего сооружения.
При планировании пристройки можно выбрать одну из четырех подходящих для этого строения вариантов основ: ленточную, столбчатую, свайную или плитную.
Ленточный фундамент

Подходит практически для любого грунта, поэтому считается универсальным. Внешне это железобетонная лента, залитая согласно проекту.
Ленточный фундамент в зависимости от способа возведения может быть:
- монолитным — при заливке бетонной смеси в подготовленную опалубку;
- сборным — собранный из готовых фундаментных блоков.
Такое основание подойдет как для кирпичной пристройки, так и для газоблочной. Оно предоставляет возможность иметь подвальное помещение под домом. Но кроме преимуществ, есть у него и существенные недостатки: дороговизна и необходимость выполнения трудоемких земляных работ.
Столбчатый фундамент
Для небольших по весу каркасных конструкций можно установить столбчатую основу. Ее преимущества — невысокая стоимость строительных материалов и надежность. Это наиболее распространенный вариант, если подбирается фундамент для пристроя к деревянному дому под баню или веранду.
Основой такого вида фундамента являются столбы, установленные на расстоянии от полутора до трех метров друг от друга.
Внимание! Столбы могут быть выполнены из кирпича, керамзитобетонных блоков, бруса лиственницы.
Если планируется строительство подвала, то такая основа не подойдет. Этот фундамент можно сооружать только на неподвижном грунте.
Свайный фундамент
Если на участке слабый грунт или он расположен в заболоченной местности, а конструкция запланирована массивная, делают свайное основание. Это стальные, железобетонные либо деревянные опоры, связанные обвязочной балкой. Сваи погружаются глубоко в землю методом вкручивания либо забивания с использованием спецтехники.
Плитный фундамент

Этот вариант считается самым лучшим для любых построек, но и самым дорогим. Для создания сплошной монолитной площадки под всю постройку потребуется большое количество бетонного раствора и дорогостоящей арматуры.